11 marquis avenue | $7500 | leased
RENOVATED 4 BEDROOM IN THE KINGSWAY!
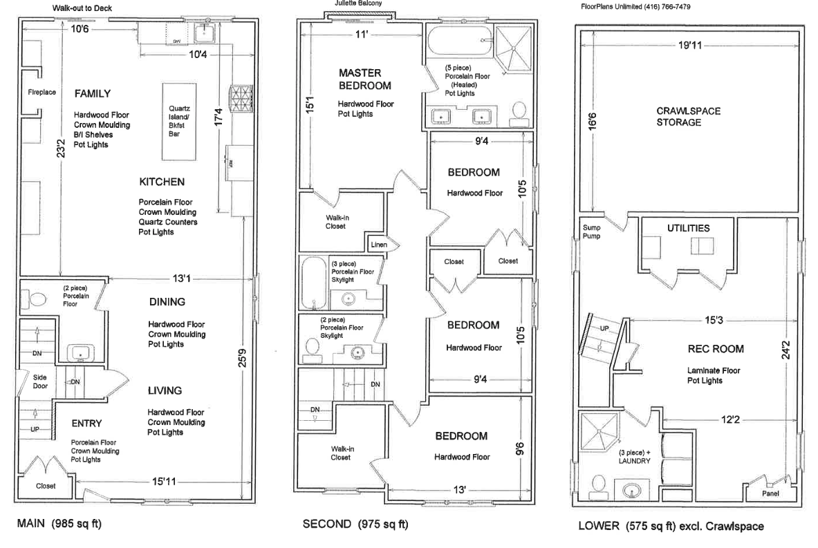
This striking 4 bedroom/4 bath home, located in the heart of The Kingsway, has been renovated from top to bottom and features an open concept main floor including a family room that opens up to the stunning yard and deck. Four family-sized bedrooms on the 2nd floor including a stunning primary with a walk-in closet, 5-piece ensuite and a Juliette balcony overlooking the yard. The home also boasts a finished lower level complete with recreation room, storage space and a 3-piece bath.
AMENITIES
bedrooms | 4
bathrooms | 4
parking | 3
NEED TO KNOW
included parking
private outdoor space
every home has a story to tell…
This home is perfectly located within steps to Lambton-Kingsway School and Park, it is a fabulous location for families to be able to enjoy the shell pit, swimming pool & baseball diamond and the kids love being able to pop home for lunch!
GALLERY
FLOOR PLANS | 1560 sq ft + 575 sq ft below grade
YOUR DREAM HOME AWAITS.
Want to learn more about this previously leased property or book a listing consultation?

